Návrh tělocvičny ZŠ Křižná
Helena Sosnová, Vojtěch Sosna
Valašské Meziříčí
2024
Architektonická soutěž
Návrh tělocvičny ZŠ Křižná
Helena Sosnová, Vojtěch Sosna
Valašské Meziříčí
2024
Architektonická soutěž
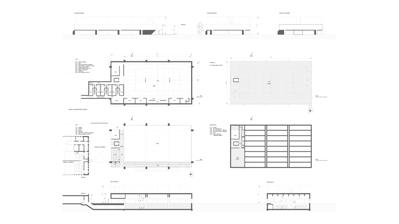
Zadáním soutěže byl návrh sportovní haly pro potřeby základní školy a také veřejnosti města Valašské Meziříčí. Hlavní myšlenkou byl respekt k původnímu objektu školy a návaznost na architektonické pojetí tohoto typu architektury. Navržená sportovní hala je umístěna tak, aby respektovala pavilónový prostorový koncept školy včetně možnosti průchodu suchou nohou pro děti. Je situována východně od školy, hrana objektu je na hraně vstupu školy – jde o podobně významnou veřejnou stavbu. Díky jejímu vysunutí k ulici je zachován poměrně velkorysý a ucelený prostor zahrady školy. Pro harmonické hmotové zapojení do školního areálu je tělocvična zapuštěna do terénu. Sportovní hala je integrální součástí vnitřního provozu školy, ale přitom je umístěna tak, aby mohla fungovat zcela autonomně. Hala je zpřístupněna skrze nejvýchodněji položený pavilon školy – jídelnu. Forma domu je silně ovlivněna nosným systémem, jde o estetizaci nutného. Zahloubenou jámu hřiště překrývá betonová střecha podepřená silnými sloupy, jejichž umístění vychází z vnitřní logiky prostor, možností dělení hřiště. Díky zapuštění má hřiště ideální osvětlení – to je z výšky. Interiéry přiznávají svou materiálovou podstatu v čiré pravdivosti – v betonu. Exteriér haly tvoří hrubý beton – na silných podporách, sklo a broušená omítka – na zateplení. Celá střecha slouží jako sportoviště.