Infocentrum města Humpolec (Helena Sosnová pro Atelier Bod architekti)
Helena Sosnová, Vojtěch Sosna
Humpolec
2025
Architektonická studie
Infocentrum města Humpolec (Helena Sosnová pro Atelier Bod architekti)
Helena Sosnová, Vojtěch Sosna
Humpolec
2025
Architektonická studie
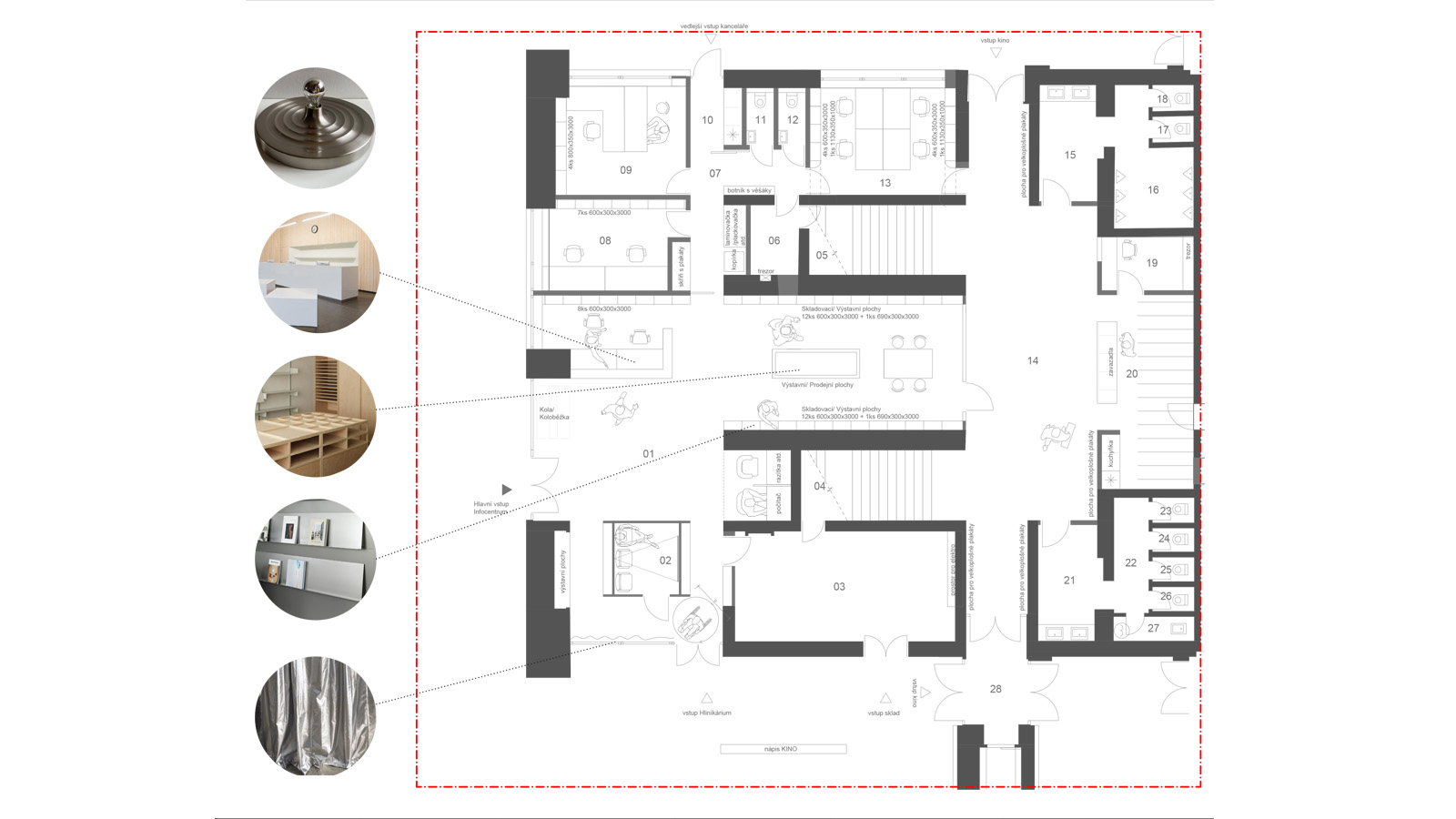
Infocentrum je navrženo jako přirozená součást veřejného prostoru – ne jen jako služba, ale jako kulturní a společenský uzel pro místní i návštěvníky. Je otevřené, přívětivé a vizuálně propojené s městským kinem, kavárnou i probíhající projekcí. Stává se tak vstupní branou k širším kulturním zážitkům. Návrh respektuje původní architekturu budovy a pracuje s jejím hlavním motivem – symetrií. Tu přenáší i do nového dispozičního řešení. Zvětšené prosklení směrem do Husovy ulice zdůrazňuje transparentnost a dostupnost služeb. Přízemí tvoří informační pult propojený s prodejní a výstavní plochou. Zázemí (kanceláře, kuchyňka, toalety, sklad) je rozšířeno a logicky navazuje na infocentrum i kino. Součástí je také prostor pro výstavu "Hliníkária". Pokladna kina je nově přesunuta do prostoru šaten. Vestavěný nábytek s úložnými funkcemi minimalizuje potřebu dalších skladů. Interiér vychází z místního kontextu – zachována je původní dlažba, osvětlení odkazuje na atmosféru kinosálu. Dominantním materiálem je hliník, zvolený pro svou čistotu i symbolický význam. Odkazuje na známou repliku z filmu Marečku, podejte mi pero!, která spojila Humpolec s postavou Hliníka. Motiv dodává prostoru lehkost a nadhled a posouvá infocentrum od pouhé funkce k místu s vlastním příběhem.